3731 SE 15th PlaceCape Coral, FL 33904
Due to the health concerns created by Coronavirus we are offering personal 1-1 online video walkthough tours where possible.




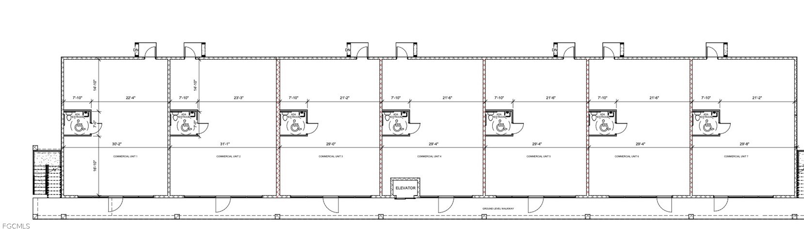
Located in the thriving South Cape Coral area. Entitled land with approved plans for a mixed-use development featuring workforce housing apartments and commercial space. This property is zoned C1 (confirm zoning for uses). The project includes 70 workforce housing apartments and 8,300 square feet of versatile commercial space. This property offers excellent access to public transportation, major highways, and local amenities, making it an attractive location for residents and commercial tenants. Deed-restricted under the Live Local Bill, requiring 40% of units to be rented to tenants earning less than 120% of the area median income (AMI). As of April 2024, Cape Coral's AMI is $88,800. Buyers have options: 1) Acquire the entitled lot (3.5M) and building plans to build under their own contractor and financing 2) Use Curran Young and the current construction estimate we have. $250/sf = 18.5M 3) Join us, if you are an accredited investor, through our fund Pre-construction pricing subject to change. Specifications, features, and availability may be modified prior to contract. Property is currently undeveloped and not subject to any lease or rental agreements. Buyer is responsible for securing any future tenants or rental arrangements.
| a month ago | Price changed to $14,950,000 | |
| a month ago | Listing updated with changes from the MLS® | |
| 2 months ago | Listing first seen on site |
The data relating to real estate for sale on this website comes in part from the Florida Gulf Coast MLS. The information being provided is for consumers' personal, non-commercial use and may not be used for any purpose other than to identify prospective properties consumers may be interested in purchasing. Information deemed reliable but not guaranteed.
Did you know? You can invite friends and family to your search. They can join your search, rate and discuss listings with you.